- 20 jaar ervaring
- Het grootste aanbod
- 6 dagen per week bereikbaar
- Veilig online betalen
- Product omschrijving
Product omschrijving
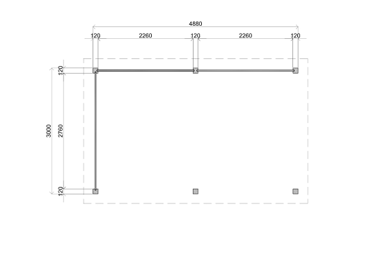
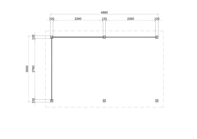
Lugarde select veranda 488x300cm - Platdak - excl. EPDM - 28mm - 1e klas gedroogd vurenhout - 18mm Dakplanken met veer en groef
Specificaties
| Collectie | Platdak |
.png?1702379951)